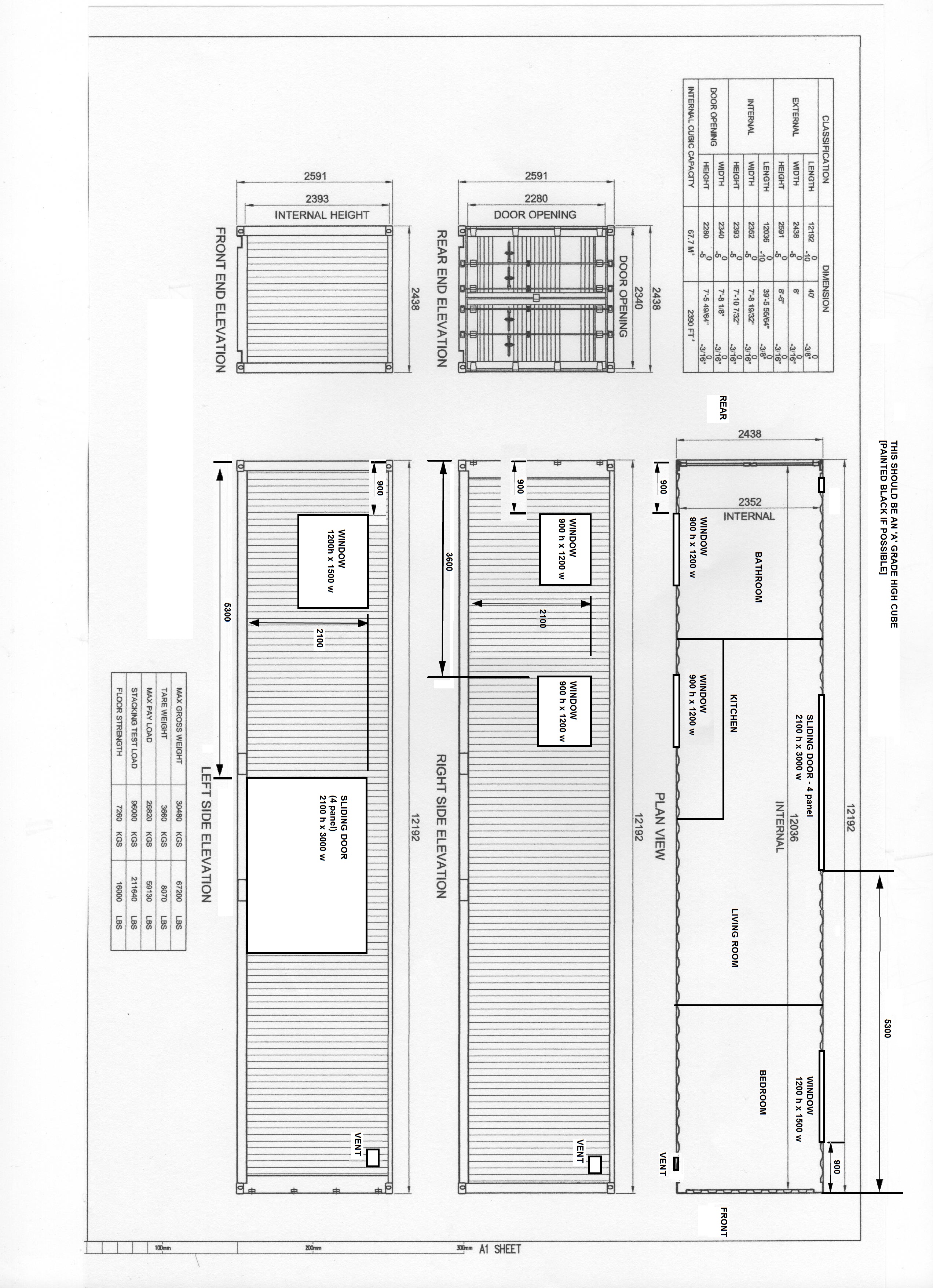
40′ Plans_FINAL_Wayne.Hall October 19, 2017 Access Containers - Thinking Outside the Box - eve@accesscontainers.com.au - 0407624650Leave a comment